
产品参数

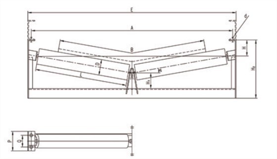
V型托辊主要用于长距离皮带机,,,,下回程皮带会泛起跑偏、跳动等。。接纳V型下托辊,,,,就可以调解这些问题!使皮带正常运转!
V型托辊装置于皮带机回程皮带下方,,,,同时也起到回程托辊的作用,,,,避免运送机跑偏,,,,具有自动调偏等作用。。
V型托辊在长距离运送机以及运送机回程运送带跑偏的时间会起到很着述用。。
V型托辊凭证带宽可以分为B=500;B=650;B=800;B=1000;B=1200;B=1400;B=1600
托辊是带式运送机的主要部件,,,,种类多,,,,数目大。。它占了一台带式运送机总本钱的35%,,,,爆发了70%以上的阻力,,,,因此托辊的质量尤为主要。。
托辊的作用是支持运送带和物料重量。。托辊运转无邪可靠。。镌汰运送带同托辊的摩擦力,,,,对占运送机总本钱25%以上的运送带的寿命起着要害作用。。虽然托辊在带式运送机中是一个较小部件,,,,结构并不重大,,,,但制造出高质量的托辊并非易事。。
本公司产品主要优点:寿命长,,,,节能性高
1、选用托辊无缝钢管。。
2、定制哈/瓦/洛的专业托轴轴承,,,,使用寿命显着增添,,,,质地轻盈,,,,操作利便;;;;;
3、接纳密封;;;;;润滑油脂不漏,,,,可以防尘;;;;;
4、高耐温顺低温;;;;;能在零下40-120度的情形下事情。。
5、耐侵蚀;;;;;能耐盐、碱、酸,,,,顺应卑劣的事情情形;;;;;
6、优异的机械性能;;;;;强度高,,,,韧性好,,,,抗摔性强;;;;;
7、不粘结:外貌平滑不粘物料,,,,中空装置能使带沾物自行脱落;;;;;
8、经济效益高,,,,能降低维修工时等运行本钱,,,,提高经济效益。。
咨询QQ:1210189900
还可以关注我们微信公众号:sjssjx